DISCOVERY 37
Modern Facade

6
4
2
341m²
The Discovery 37 is a residence designed for modern families who value both space and versatility. Featuring an attached two-bedroom, one-bathroom granny flat, it’s the ideal solution for multi-generational living, guest accommodation, or investment potential.
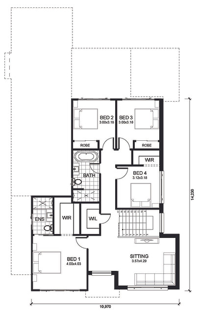
Within the main home, you’ll discover four generously sized bedrooms and three beautifully appointed bathrooms, paired with a light-filled open plan living area that flows effortlessly to a generous alfresco space. Upstairs, a spacious rumpus room, walk-in linen cupboard, and private bedroom retreats create the perfect balance of practicality and comfort.
Blending thoughtful design with everyday luxury, the Discovery 37 offers an unmatched opportunity to enjoy flexibility, connection, and contemporary living at its best.
GROUND FLOOR

FIRST FLOOR


Get in Touch
Visit us at our Colour Selection Studio
58 Argyle Street Camden
NSW 2570


